Downloads

Alle Unterlagen im Überblick

Vermietungsdokumentation
Kurzinformation
Kurzbaubeschrieb
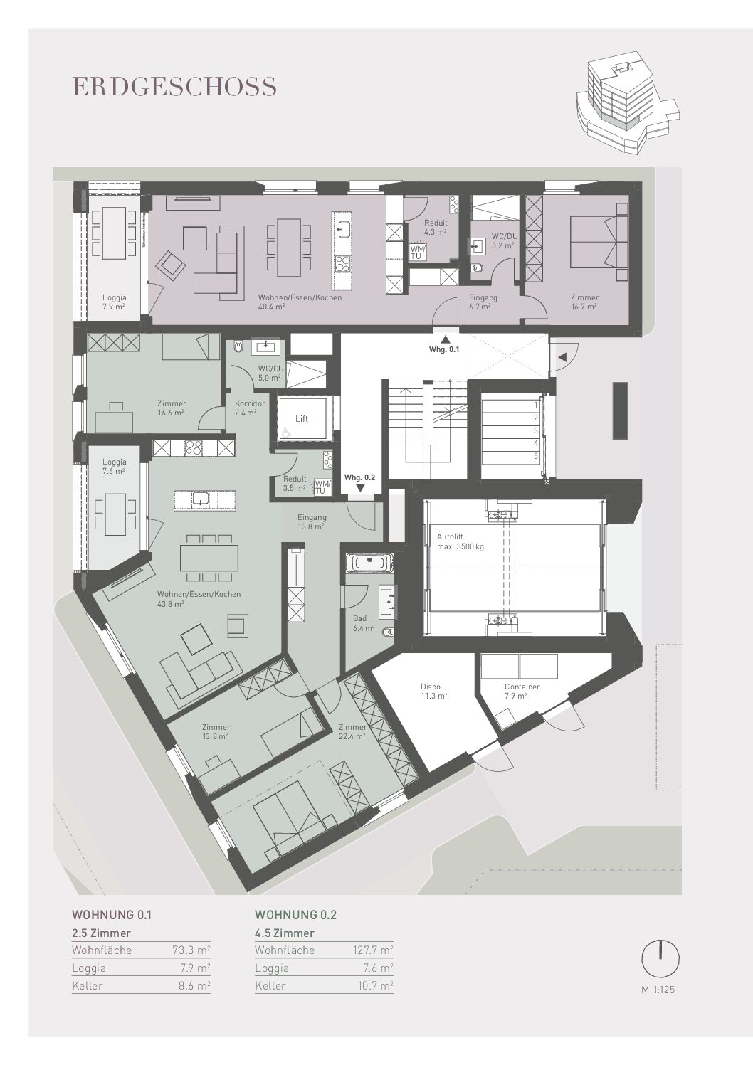
Grundrisse Wohnungen
Grundriss UG
Situation & Umgebung